Popis
Doplnky:
- Súprava IČ diaľkového ovládania.
- Zavieracie kryty.
- Tester tlmičov.
- Meranie zbiehavosti.
- Snímač ovládacej sily na pedál.
- Farebná tlačiareň.
- Žirové zinkovanie krycích plechov a krytov.
- Možnosť výberu inej riadiacej jednotky.
Zdvíhacia a servisná technika
Valcový tester MRP/RA-80
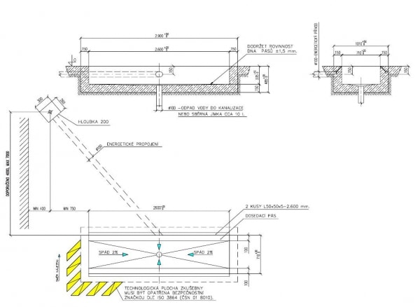
Podrobné stavebné výkresy na vyžiadanie.
Možnosť rozšírenia na testovaciu linku pripojením testera tlmičov, prípadne testera zbiehavosti.
Doplnky:
Copyright © 1995 – 2020 AST s.r.o.